LA SALLE XL
À AMÉNAGER COMME
VOUS LE SOUHAITEZ
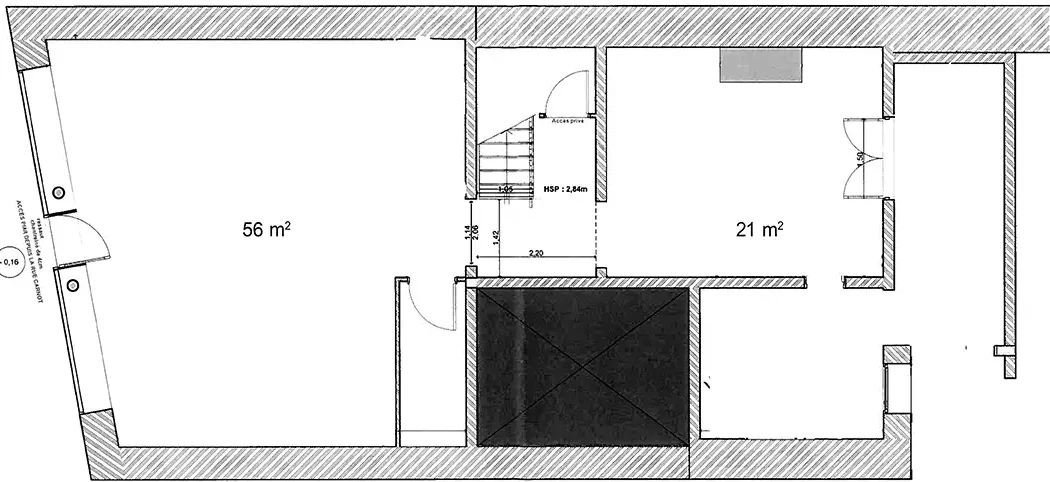
Un lieu chaleureux et propice à l’échange, au rez-de-chaussée, équipée façon Palais des congrès et accessible à tous. 30 places assises en configuration salle de classe, 50 en mode conférence.


